Кухня в двухэтажной квартире на севере Москвы
Как обыграть железобетонные балки на потолке и создать из 37 квадратных метров 80, рассказывает архитектор и дизайнер Анна Малютина.

Автор проекта — Анна Малютина, архитектор, дизайнер
- Основатель студии архитектуры и интерьерного дизайна Анны Малютиной
- Топ-100 дизайнеров России-2024
- Член жюри конкурса АрхИдея 2025
- Постоянный участник программ «Квартирный вопрос» и «Дачный ответ» на НТВ
— Дизайнеров часто спрашивают: «Чем вы вдохновляетесь в своих решениях?» И многие начинают фантазировать что-то про стили, про искусство, про природу. Хотя единственное, чем мы вдохновляемся, — это образом жизни и индивидуальностью людей, которые будут в этих интерьерах жить.
Какая задача стояла перед дизайнером
- Тип недвижимости: новостройка, двухуровневая квартира с панорамным остеклением на севере Москвы
- Общая площадь — около 80 кв. м
- Площадь кухни-гостиной — 25 кв. м
- Проект — 4 месяца, реализация проекта — 12 месяцев
— Заказчики — семейная пара с ребенком и котом. Мы были хорошо знакомы, уже делали для них предыдущую квартиру. В семье ожидалось пополнение, надо было расширяться, и они снова обратились к нам.
Работать со знакомыми заказчиками очень удобно: ты уже знаешь вкусы, пожелания, особенности. Наверное, самая заметная черта и мужа, и жены — это высокий, под два метра, рост. Это значило, что стандартная высота столов не подходила, все столешницы должны располагаться на высоте не 85-90 см, а одного метра. Под высокий рост нужно было продумывать все: размеры спальни, высоту потолков, высоту стульев. Этим диктовался и выбор производителя: не все могут это реализовать.
Мебель заказываем еще на этапе черновых строительных работ, не ждем чистовой отделки. Это позволяет организовать и оптимизировать все строки, не затягивать стройку.
Ребята хотели современный, минималистичный интерьер с минимумом декора, но яркими акцентами. При этом бюджет был ограничен: квартира покупалась в ипотеку, с привязкой к определенному району, предстояло выполнить ряд задач по строительству и дизайну.
Все эти моменты важно было соединить в проекте. Мы вместе с заказчиками искали подходящие варианты, смотрели планировки, анализировали. Когда были на просмотре этой квартиры на севере столицы, я сделала замеры прямо в моменте, прикинула планировку, мы оценили все сложности и риски, поняли, как с ними можно справиться — и заказчики ее купили.
Как проходила работа над проектом
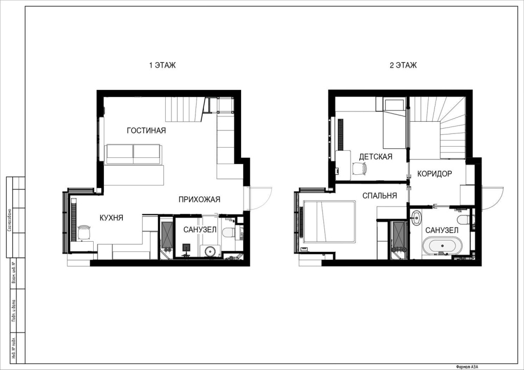
— Нам предстояло разместить на первом этаже общую зону кухни-гостиной, санузел с душевой, места для хранения сезонных вещей. На втором этаже сделали отдельные спальни и выделили место для хозблока.

Все сложности, которые ждали нас на этом проекте, можно разделить на конструктивные и стилистические.
Маленькая площадь квартиры
Пример конструктивных — небольшая площадь квартиры, меньше 40 кв.м. Нам предстояло удвоить площадь за счет надстройки второго этажа. К счастью, это было возможно: несмотря на скромные размеры, у квартиры были очень высокие потолки и много окон.
Очень непростой потолок
Потолок — еще один пример конструктивных сложностей. У него большой перепад высот. По всему потолку проходит монолитная несущая железобетонная балка, по периметру — еще железобетонные конструкции. Ломаную плоскость потолка было невозможно замаскировать, но можно было обыграть. Потолочные рейки, которые мы использовали, придавали интерьеру дополнительную динамику, были интересным и необычным решением — как будто так и задумано.
Углы, которые хочется спрятать
Сложная геометрия потолка распространяется на всю квартиру. Поэтому в квартире еще и много зеркал, и они не только красивы, но и функциональны.

Зеркала считаются проверенным приемом расширения пространства, добавления в него света благодаря отражениям. Но в этом доме зеркала выполняют еще одну важную функцию — позволяют оптимизировать сложную геометрию пространства со множеством углов. Они буквально «растворяют» углы, пространство выглядит гармоничным и сбалансированным. Для этого же мы использовали панели и особую окраску стен с помощью цветового деления.

Обилие дерева и яркие акценты
Что касается стилистических решений, то у заказчиков была мечта — чтобы в двухэтажной квартире с панорамными окнами на Москву возникало ощущение загородного дома. Им нравится текстура дерева (именно поэтому, например, балки под потолком деревянные). Они любят абсолютно чистые интерьеры, идеальный порядок, максимально закрытое хранение. Цвета спокойные, при этом хотелось акцентов, которые можно было бы поменять в случае, если они наскучат.

Много мест хранения
— На первом этаже мы не стали выделять отдельную зону прихожей. При входе организовали шкаф, который скрывает обувь и одежду.
Хозяева хотели много мест хранения, при этом просили, чтобы не было пылесборников. Следовательно, нам нужно было разместить все зоны хранения за глухими закрытыми фасадами: в кухне, в шкафах в прихожей, шкафах под лестницей. Даже обувь оставлять в открытом виде было нельзя: у хозяев кот, да и входная зона не должна была по задумке выглядеть и просматриваться как прихожая с ее вечным беспорядком.

А шкаф под лестницей используется для хранения сезонных вещей, складной мебели, бытовой утвари, тренажера и инструментов, документов и аптечки.

Как устроена кухня в двухуровневой квартире
— В компании «Стильные Кухни и Интерьеры» мы заказывали кухонный гарнитур. Он получился компактный, но увеличить его площадь было никак нельзя из-за конструктивных особенностей помещения и расположения шахт с коммуникациями. Инженерный короб разделяет два помещения. Он расположен ровно по ширине простенка. Нам был важен каждый сантиметр, поэтому возводить стены и создавать нишу для кухни не хотелось. В результате мы сделали «фальш-стену» — наклеили панель прямо на боковину кухонного гарнитура.

— Заказчики хотели сделать кухню не только красивой, но и незаметной — чтобы она не выделялась на фоне остальных стен. Поэтому цвет стен был сделан в цвет фасадов.
Для корпусов и белых фасадов использовали «Фабио» (ЛДСП «ЭГГЕР»). Материал верхних фасадов — шпон, фасады «Линеа». Столешница выполнена из компакт-плиты. С ней установщики промахнулись и поставили сначала не той стороной. Но мы это заметили, монтажники приехали очень быстро и все исправили.
Из-за ограниченности бюджета вся кухня у нас, за исключением верхних фасадов в шпоне, сделана из ЛДСП. Это прекрасный материал, который отлично имитирует различные текстуры. Но у него есть минус — кромка, которая всегда заметна из-за стыков. Чтобы это не так бросалось в глаза, можно сделать контрастную кромку, как поступили и мы — у нас она черная. Да, она видна, но в минималистичных интерьерах со строгими графичными линиями это выглядит осознанным решением, а не небрежностью.

— Нам нужно было предусмотреть много мест хранения и разместить всю бытовую технику. Поэтому мы отказались от мысли сделать все фасады одного размера (такова современная тенденция). Сделали красиво, функционально и удобно, разместили встроенные духовку, СВЧ-печь, посудомойку на 450 мм, бутылочницу. Под мойкой со смесителем установили фильтр для воды и еще немного зон для хранения. А вот морозильную камеру, например, вынесли за пределы кухни и установили ее в одном из шкафов под лестницей на второй этаж.

— Чтобы кухня не смотрелась массивно и громоздко, наверху мы сделали два вида фасадов — белые и шпонированные, а также установили одну стеклянную секцию, куда можно красиво расставить посуду.

— Обычному человеку расстановка на кухне покажется немного непривычной. Но мы ориентировались на большой рост клиентов, поэтому сделали высоту рабочей поверхности — 1000 мм вместо стандартных 850 мм, а также верхние шкафы находятся чуть выше, чем обычно, фартук — не 600 мм, а 750 мм. Стандартный стол хозяевам в нашем случае тоже не подходил, для них нужна была полубарная высота. . Мы организовали кухонный остров высотой 1000 мм с местами для хранения, который выполняет роль дополнительной поверхности для приготовления еды, обеденного стола и места, где можно собраться с гостями. Для больших компаний разворачивается диван, а из-под лестницы достаются складные стулья.

Экскурсия по квартире
— Сложная геометрия первого этажа обыграна с помощью чередования объемов, как цветовых, так и композиционных. Зоны в квартире обозначены границами покраски потолка и стен. Мы также добавили вертикального ритма стеновыми панелями, зеркалами и потолочными балками.
Мебель очень простая по форме, цвета интерьера также спокойные. Однако интерьер не выглядит скучным за счет акцентов, например, пола в активной текстуре камня, яркого дивана, красочных картин на стенах. В монохромной гамме решены почти все помещения квартиры, за исключением детской: там добавили цвета и рисунка в виде забавных обоев и бело-зеленых реек.

— Отдельный предмет нашей гордости — лестница. Нам нужно было очень точно рассчитать перекрытия этажа, высоту и ширину ступеней, чтобы хозяевам было комфортно и безопасно передвигаться по квартире. К сожалению, из-за особенностей помещения и небольшой площади квартиры сделать лестницу прямой, без поворотов, было невозможно. Поэтому мы постарались сделать поворотные ступени максимально широкими.
Ограждение было задумано воздушным, однако оно тоже очень надежно. Плюс было задумано использовать пространство под лестницей для хранения. Все получилось: интерьер не выглядит перегруженным, лестница стала интересным акцентом, которая притягивает взоры всех гостей, а самим хозяевам очень удобно ею пользоваться.
Рабочее место
— В зоне окон выделили место для небольшой зоны хоум-офиса, здесь хорошо работать несколько дней в неделю на удаленке. Вместо стола взяли консоль, чтобы не утяжелять пространство. Картина над рабочим местом поддерживается красивым цветом дивана. Небольшие цветные штрихи-акценты делают интерьер более глубоким и интересным.
— Диван раскладной, с дополнительным спальным местом, и стоит так, чтобы в разложенном виде не перекрывать проход к лестнице.
Санузлы
— Если в квартире или доме два этажа, санузлы должны быть на каждом. На первом он лаконичный и небольшой, а на втором, в приватной зоне — это целая просторная ванная комната с отдельно стоящей ванной. Рядом с ней расположен хозяйственный блок: стиральная машина, сушильная, гладильная доска, скрытые шкафы.
Приватная зона: спальня и детская

— Родительская спальня — небольшая, но очень уютная и комфортная, с панорамными окнами и огромной ТВ-панелью напротив кровати.

В детской на втором этаже сделали световое окно в коридор, чтобы оттуда в зону лестницы попадал естественный свет.
Особенности проекта
— Проект мы сделали за 4 месяца, а реализация его, вместе со стройкой и мебелью, в целом заняла год.

В этой квартире было много взаимодействия с разными подрядчиками. Например, кухню мы заказали в вашей компании, а остров с полубарной стойкой — у других производителей, потому что там были нужны нестандартные решения, такие, как металлические ребра жесткости, чтобы избежать прогиба посередине.
В каждом конкретном случае я понимаю, какие проекты можно отдавать в «Стильные Кухни и Интерьеры», и это будет сделано отлично, а какие — другим производителям, у которых, например, шире ассортимент декоров и, следовательно, больше возможностей добиться нужного визуала. У дизайнеров часто возникают нестандартные, кастомные задачи, и от производств требуется большая гибкость, чтобы их решать.
В чем «Стильные Кухни и Интерьеры» сильны, так это в соблюдении сроков и в безупречной работе с рекламациями. За последние три года стало ясно, что многим компаниям не удалось переориентироваться на новых поставщиков, приспособиться к новым условиям. А «Стильные Кухни» в моменте очень быстро переключились, и благодаря этому даже в самые сложные времена выдерживали обещанные сроки, когда все остальные этим похвастаться не могли.Сделать онлайн-расчёт вашего проекта
Сделать онлайн-расчёт вашей будущей кухни
Сделать онлайн-расчёт вашей будущей кухни
-
27 лет на рынке
Изготовили > 630 000 кухонных гарнитуров
-
Бесплатные услуги
Замер, доставка, подъём, сборка и установка
Работаем по Москве и МО и по СПб и ЛО